Interhabs
Menu

Chebucto

Column

Column

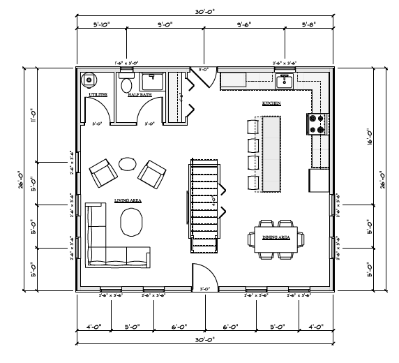
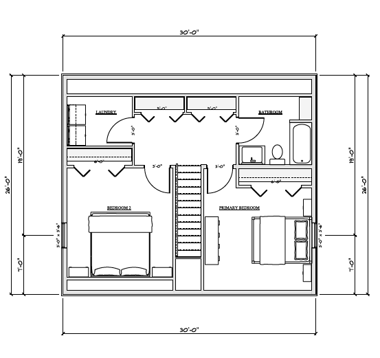
Features:


  • 3 Bedroom

  • 2 Bath

  • 30' x 26'

  • 1,530 sq ft


The Chebucto has the look of a traditional Cape Cod exterior with a modified interior for modern living. On the main floor you'll find a kitchen, open concept living and dining, a half bath and bedroom. Upstairs features a loft, full bath and two additional bedrooms.


Can be customized to suit your needs!

 

Floor Plan

Click floor plan image to enlarge.

https://0901.nccdn.net/4_2/000/000/009/f6b/chebucto-main.png
https://0901.nccdn.net/4_2/000/000/081/4ce/chebucto-upper.png
0

Gallery

https://0901.nccdn.net/4_2/000/000/046/6ea/chebucto2.jpg
https://0901.nccdn.net/4_2/000/000/060/85f/chebucto-40-.png
0


Interhabs packages do not include build site preparation, foundations, on-site panel assembly, plumbing, electrical, HRV/HVAC and other mechanical systems, finished flooring, cabinetry, interior fixtures and finishes, or any permits; these aspects of your project are your/your contractor’s responsibility.



| Interhabs | 33 Station Road, Hubbards, NS B0J 1T0 | 902-857-1616 | info@interhabs.ns.ca | Copyright 2024 Interhabs Limited |


close lightbox